Rm 1602 Area 2 Bld E Lan Chou Ming Zuo
Line 2 Chaoyang Men (5-min)
RMB 30,000/mo









Information
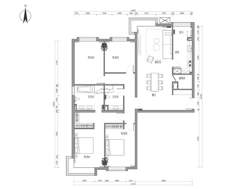
4
2
228㎡
Spacious Flat
Home Improvement Pro
Facilitys
Radiators
Central air-conditioning
Furnished
Pets Friendly
Posted by
Freeman
Approved by
Lintel Group



























