Rm 701 Unit 2 No 6 Guo An Mansion
Line 2 Xuanwu Men (3-min)
RMB 31,500/mo











Information
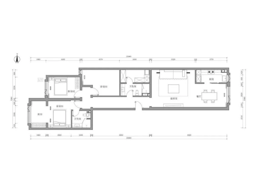
3
2
148㎡
One Storey Flat
Home Improvement Pro
Facilitys
Floor Heating
Central air-conditioning
Open kitchen
Furnished
Pets Friendly
Posted by
Maison
Approved by
Freeman











































