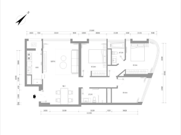
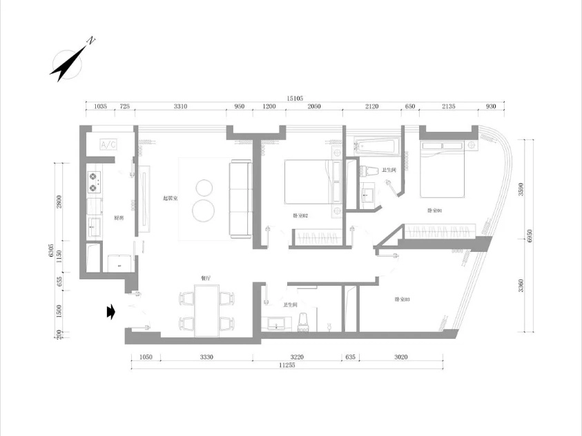
已租 查看小区信息财富中心服务式公寓22A室10号线 金台夕照站 (1分钟)现代公寓 RMB 27,000/月基础信息32143㎡普通平层美房专家配套设施墙暖中央空调配家具宠物友好发布Maison审核Freeman联系玄楣财富中心服务式公寓22A室的评价暂时还没有评价...我要评价您可能感兴趣的房源现代公寓第一使馆区和国贸财富中心服务式公寓23M室RMB 25,000/月已租22123现代公寓第一使馆区和国贸财富中心服务式公寓19B室RMB 19,000/月227天前22135现代公寓第一使馆区和国贸财富中心服务式公寓4L室RMB 18,900/月已租1195现代公寓第一使馆区和国贸财富中心服务式公寓21H室RMB 27,300/月已租32167