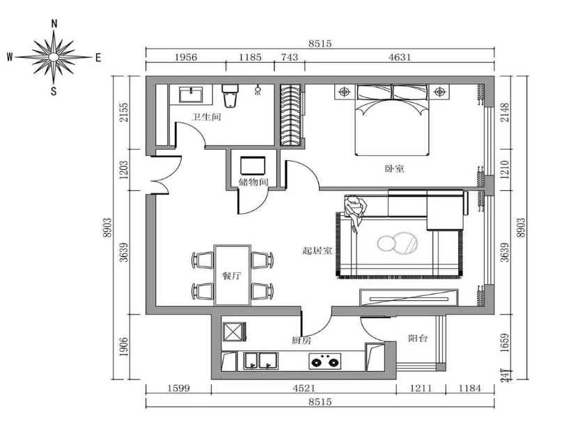
客厅客厅客厅客厅餐厅餐厅餐厅餐厅厨房卧室卧室卫生间卫生间储藏室房型图已租 查看小区信息海润国际公寓2号D单元2501室14号线 望京南站 (13分钟)现代公寓 RMB 15,300/月基础信息1177㎡普通平层美房专家配套设施中央空调配家具宠物友好发布Maison审核Freeman联系玄楣海润国际公寓2号D单元2501室的评价暂时还没有评价...我要评价您可能感兴趣的房源现代公寓丽都-最早的外籍住宅区海润国际公寓2号D单元602室RMB 28,000/月已租44229现代公寓丽都-最早的外籍住宅区海润国际公寓2号D单元2601室RMB 17,000/月已租1177现代公寓丽都-最早的外籍住宅区海润国际公寓1号A单元8C室RMB 22,500/月已租22124