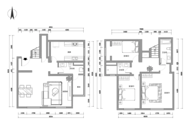
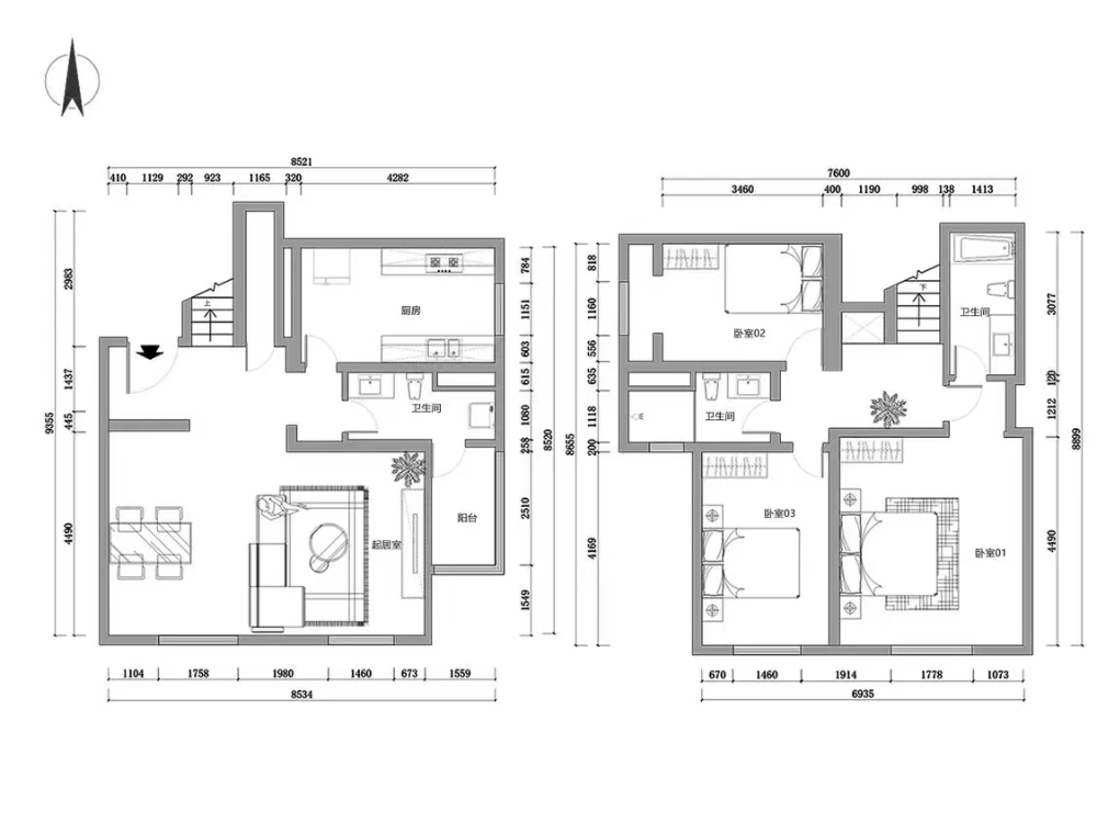
213天前 查看小区信息凤凰城B座2单元3008室10号线 三元桥站 (5分钟)现代公寓 RMB 24,200/月基础信息33178㎡复式美房专家配套设施墙暖配家具宠物友好发布Freeman审核Lintel Group联系玄楣凤凰城B座2单元3008室的评价暂时还没有评价...我要评价您可能感兴趣的房源现代公寓太阳宫凤凰城A座2单元2109室RMB 26,000/月13天前32150现代公寓太阳宫凤凰城C座2单元605室RMB 42,000/月225天前33230现代公寓太阳宫凤凰城F座2单元2808室RMB 20,000/月已租22115现代公寓太阳宫凤凰城B座2单元1908室RMB 23,000/月271天前32178